MG3L190
Appartamento
Via Platone
Montegrotto Terme
Appartamento
Via Platone
Montegrotto Terme
  • Prezzo 190.000 €
  • Camere 2
  • Bagni 2
  • Superficie 138
  • Giardino -
  • Vedi tutti →

Spazioso appartamento nel cuore del comune termale veneto, affacciato su una strada residenziale laterale al Corso delle Terme.

L’unità appartiene ad un piccolo fabbricato di sole 4 unità collegate da scala interna, che collega due immobili per ogni pianerottolo.
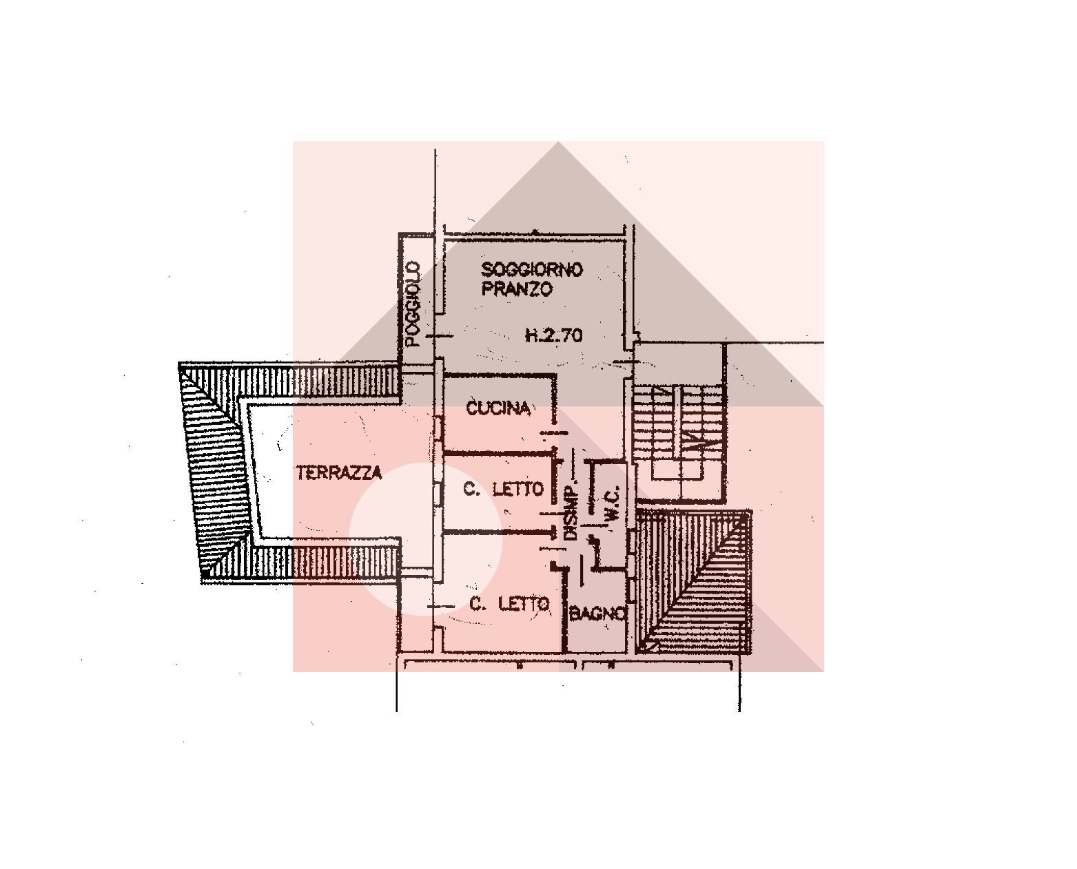
L’appartamento, collocato al primo piano e su unico livello, è dotato di un magnifico soggiorno da 34mq, la cucina separata, due camere (matrimoniale e singola), due bagni finestrati ed un meraviglioso terrazzo abitabile da 22mq (oltre al poggiolo per altri 16mq).
Il garage al piano terra completa la proprietà.

Attualmente locato, disponibile dal 1 giugno 2026.

Chiamaci per una visita all’immobile ed apprezzarne pienamente ogni qualità.

  • Tipologia Appartamento
  • Piano Primo
  • Anno di costruzione
  • Classe energetica F (IPE 160,61 kwh/mq anno)
  • Stato Libero
  • Orientamento Ovest
  • Condizioni generali Buono stato
  • Zona Centro
  • Codice annuncio MG3L190
  • Indirizzo Via Platone
    Montegrotto Terme
  • Prezzo 190.000 €
  • Camere 2
  • Bagni 2
  • Garage 1
  • Superficie 138
  • Giardino -
  • Classe energetica F (IPE 160,61 kwh/mq anno)
  • Tipologia Appartamento
  • Piano Primo
  • Anno di costruzione
  • Stato Libero
  • Orientamento Ovest
  • Condizioni generali Buono stato
  • Zona Centro
  • Caratteristiche
    • Posizione centralissima fra Abano e Montegrotto
    • Fabbricato di sole quattro unità
    • Magnifico terrazzo
    • Zero spese condominiali
    • Spazi residenziali introvabili
  • Finiture
    • Ceramica
    • Legno
Interessato a questo immobile?
Contattaci